Skip to content
About
Building Features
Virtual Tour
About
Building Features
Virtual Tour
Contact Us
Home
About Us
Video Tour
Availabilities
Book a Tour
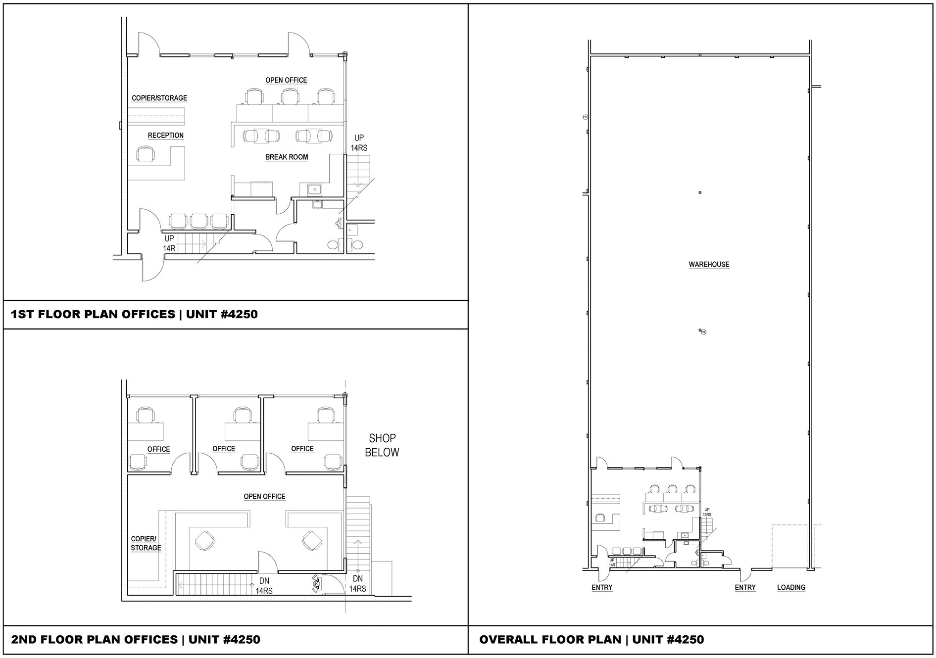
4201 NW 37th CT MIAMI FLORIDA
Unit 4250
Book a Tour Today!
Images of the Unit
Highlights
+/- 9,534 SF Updated and modern office space
Expansive 18’ clear height ceiling
User-friendly and practical layout
Ample space for versatile use
Book a Tour
Open as PDF